Nearby Schools
Memorial EsElementary School
East Brook MsMiddle School
Paramus HsHigh School
Description
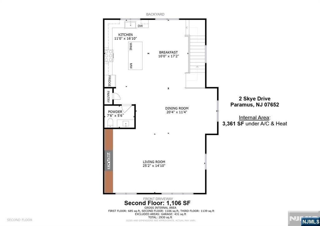
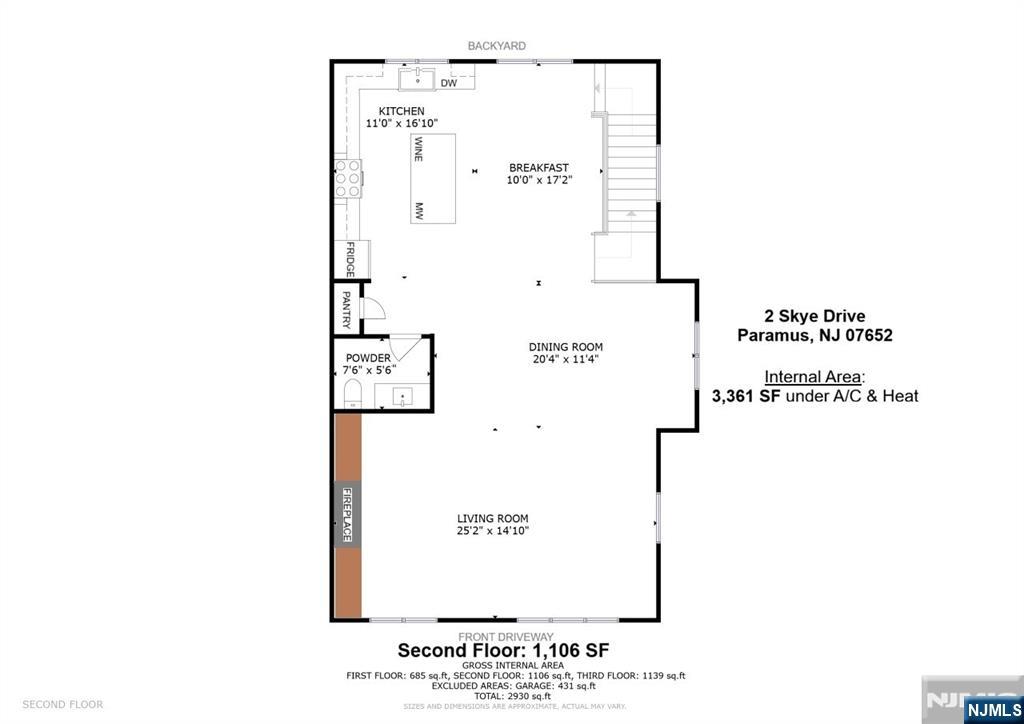
SKYE DRIVE ESTATES: Experience unparalleled sophistication in this new luxury home. This premier corner unit is tucked at the quiet rear of the community with NO REAR NEIGHBORS, offering a private and coveted location. | LIGHT-FILLED & SPACIOUS DESIGN: 3,361 SF under A/C & Heat of above-ground living. Large windows facing East and West ensure your Master Suite is flooded with morning light, while the open-concept main level glows in the morning and afternoon sun. High 9.5’ ceilings on all 3 levels with large windows allow light to come into the home during the day while window treatments with blackout curtains maintain privacy at night. | LEVEL 1: REC ROOM & OFFICE- Opens directly to a private backyard patio overlooking a serene tree line and bamboo forest. - STATE OF THE ART INDOOR GOLF STUDIO: Powered by Foresight GC Quad launch monitor, a 16-foot wide 4K impact screen, and 20’x20’ premium grass turf. | LEVEL 2: GOURMET ENTERTAINING- 44x28ft open floor plan with a 10ft quartz waterfall island, Sub-Zero/Wolf appliances, and gas fireplace with custom built-ins. | LEVEL 3: Master Suite with spa-like bath and massive walk-in closet. Two additional bedrooms, full bath, and laundry complete the top floor. | SMART HOME: Wired/Wireless internet on all 3 floors; Control 50+ lights via smartphone app and voice control; Level 2 EV charger. | LOW TAX RATE: 1.41% - HOA: $385/m. - Home Insurance: $154/y. | LOCATION: Steps to Van Saun Park. |
Location
Listed By
Similar Listings
No similar listings found
Unfortunately, we don't have any similar listings at the moment. Please remove or change some of the selected filters.

The data relating to the real estate for sale on this web site comes in part from the Internet Data Exchange Program of the NJMLS. Real estate listings held by brokerage firms other than Antioch Realty are marked with the Internet Data Exchange logo and information about them includes the name of the listing brokers. Some properties listed with the participating brokers do not appear on this website at the request of the seller. Listings of brokers that do not participate in Internet Data Exchange do not appear on this website. All information deemed reliable but not guaranteed. Source: New Jersey Multiple Listing Service, Inc. New Jersey Multiple Listing Service, Inc. All rights reserved. Updated: 24th April, 2026 11:31 PM (UTC)
Listing Agent: Domenique Tozzo-Rule
Listing Office: NJ Real Estate Boutique, LLC

